- Tümü
- 2018
- 2017
- 2016
- 2015
- 2014
- 2013
- 2012
- 2011
- 2010
- 2009
- 2008
- 2007
- 2006
- 2005
- 2004
- 2003
- Tümü
- Endüstriyel
- Ticaret
- Yönetim
- Konut
- Turizm
- Sosyal Tesis
- Kentsel Tasarım
- Rölöve & Eski Eser
- Kültürel
- Peyzaj
- Mağaza
- Ulaşım
- Tümü
- Müşavirlik
- Konsept Proje
- Avan Proje
- Kesin Proje
- Uygulama Projesi
- Mesleki Kontrollük
- Proje Yönetimi
- Müteahhitlik
- Dokümantasyon
- Diğer
- Tümü
- Akzo Kemipol
- Akzo Boya
- Kansai Altan
- Metro Group
- PVN İstanbul
- Argen
- Kale - Pratt & Whitney
- Baykar
- LCW
- Diğer
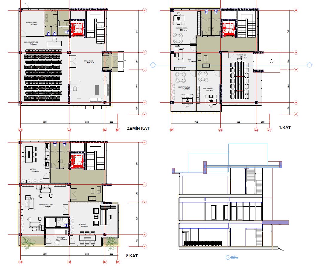
Kansai Altan Ofis Binası
Proje Tarihi: 2015-2018
İnşaat Tarihi: devam ediyor
Proje İsmi: Kansai Altan Ofis Binası
Proje Kategorisi: Yönetim
Proje Ortakları: Etüd Mimarlık
Proje Ekibi: Can Özsavaşcı
Arzu Özsavaşcı
Arzu Özsavaşcı
Proje Yeri: Kemalpaşa / İzmir
Verilen Hizmet: Avan Proje, Kesin Proje
İşveren: Kansai Altan San. Tic. A.Ş.
İnşaat Alanı: 610 m²





